หมวดหมู่สินค้า
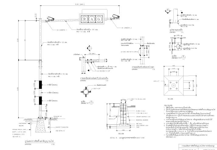
ไฟจราจรอัจฉริยะ C-AI เสาไฟสัญญาณแบบ MAST ARM
หมวดหมู่ : กลุ่มไฟจราจร
🚦 เสาสัญญาณไฟจราจรพร้อมฐานรากและอุปกรณ์ติดตั้ง (Traffic Signal Pole System)
🏗️ รายละเอียดทั่วไป
เสาสัญญาณไฟจราจรผลิตจากเหล็กคุณภาพสูง มาตรฐานอุตสาหกรรม มอก. และ ASTM A36
ผ่านกระบวนการ ชุบกัลวาไนซ์แบบจุ่มร้อน (Hot-Dip Galvanized) ตามมาตรฐาน ASTM A123
เพื่อป้องกันสนิมและยืดอายุการใช้งานในทุกสภาพอากาศ เหมาะสำหรับติดตั้งบริเวณสี่แยก ถนนหลัก และพื้นที่ Smart City
⚙️ คุณสมบัติทางเทคนิค
-
ความสูงของเสา: 8 เมตร
-
ความยาวแขนยื่น: 5 เมตร (สูงสุด)
-
รูปทรง: เสากลมปลายเรียว (Tapered Pole)
-
เส้นผ่านศูนย์กลางฐาน: Ø 250 มม.
-
เส้นผ่านศูนย์กลางปลายเสา: Ø 125 มม.
-
ความหนาเหล็ก: 6 มม.
-
ระบบป้องกันสนิม: ชุบสังกะสีแบบจุ่มร้อน
-
ระบบเดินสายไฟ: เดินท่อเหล็ก EMT ภายในเสา พร้อมกล่องต่อสาย Junction Box
💡 อุปกรณ์ติดตั้งบนเสา
-
สัญญาณไฟ R / A / G (Red – Amber – Green):
ขนาดเลนส์ Ø 300 มม. ระบบไฟ 220V 50Hz -
กล้อง CCTV:
รองรับการติดตั้งกล้อง 2 ตัว (Camera 1 และ Camera 2) สำหรับตรวจจับภาพจราจร -
ไฟส่องป้าย:
ติดตั้งโคมไฟ LED สำหรับให้แสงสว่างบริเวณป้ายชื่อถนนหรือป้ายบอกทาง
🧱 ฐานรากคอนกรีตเสริมเหล็ก (Foundation)
-
ขนาดฐานราก: 1.20 × 1.20 × 2.00 เมตร
-
คอนกรีต: คอนกรีตเสริมเหล็กกำลังอัด f’c = 240 kg/cm²
-
แผ่นเพลตฐาน: 350 × 350 × 25 มม. พร้อมรูยึด Anchor Bolt
-
Anchor Bolt: Ø 36 มม. × 900 มม. จำนวน 4 ตัว
-
เหล็กเสริม: RB 12 มม. และ RB 9 มม. ตามแบบมาตรฐานวิศวกรรม
🧾 มาตรฐานและการติดตั้ง
-
ผลิตและติดตั้งตามมาตรฐานวิศวกรรมงานจราจร
-
สามารถรับแรงลมได้สูงสุด 125 กม./ชม.
-
โครงสร้างเสามีความมั่นคง ปลอดภัย เหมาะกับการติดตั้งทั้งในเมืองและเขตชานเมือง
-
ผ่านการตรวจสอบคุณภาพก่อนส่งมอบทุกต้น
